Prodej domu
Předboj - K Parku
39 970 000 Kč
| Kód nabídky | N66429 |
|---|---|
| Dispozice domu | 6+kk |
| Poloha objektu | Samostatný |
| Druh stavby | Cihlová |
| Zastavěná plocha | 167 m2 |
| Celková plocha | 285 m2 |
| Užitná plocha | 200 m2 |
| Stav objektu | Novostavba |
| Plocha pozemku/ů | 1019 m2 |
| Typ domu | Patrový |
| Počet podlaží | 2 |
| Terasa | 12 m2 |
| Rok výstavby | 2022 |
| Umístění objektu | Klidná část obce |
| Plocha zahrady | 852 m2 |
| PENB: Náročnost budovy | B - Velmi úsporná |
Popis
Soccer Reality vám exkluzivně zprostředkuje prodej luxusního rodinného domu, který zaujme i ty nejnáročnější z vás. Dům je součástí velmi úspěšného projektu Březový háj z roku 2022, navrženého architekty společnosti JK ARCHITEKTI s.r.o. (Ing. arch. Jan Kasl a Ing. arch. Pavel Krpec). Na jejich práci navázal ateliér Morix manželů Pizingerových, který interiérům vtiskl současnou podobu, osobitý rukopis a jedinečný design.
Tato moderní a energeticky úsporná stavba (energetická třída B) byla postavena z prvotřídních materiálů a nabízí velkorysou dispozici 6+kk. V přízemí je prostorná předsíň s vestavěnými skříněmi, koupelna s WC, technická místnost a pokoj. Dominantou domu je jižně orientovaný obytný prostor spojující obývací pokoj, jídelnu a kuchyň. Z obývací části je vstup na terasu s výhledem na 12m bazén se slanou vodou, obklopený bílou dlažbou, která prostoru dodává jedinečný charakter. Večery na terase zpříjemní osvětlená zahrada, moderní venkovní krb a špičkový audio systém Bowers & Wilkins.
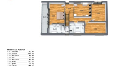
V horním patře se nachází tři pokoje orientované na východ nebo západ (v současnosti využívané jako šatna s prádelnou, dětský pokoj a pracovna) a dále prostorná ložnice s orientací na V/JV, která disponuje vlastní koupelnou se sprchovým koutem, vanou, dvěma umyvadly a samostatným WC. Z této ložnice je přímý vstup na balkon. Na patře je navíc další koupelna s vanou, sprchou a WC a vstup na půdu vhodnou pro uložení sezónních věcí.
Interiér domu je promyšlen do posledního detailu jak po praktické, tak i designové stránce. Architekti zvolili kombinaci masivního dřeva, světlých stěn a kontrastních černých prvků, které vytvářejí elegantní a nadčasovou atmosféru.
Velkým benefitem oproti ostatním domům v projektu je samostatná zateplená garáž s výškou vjezdu 220 cm, plnohodnotnými IT a elektro rozvody – ideální i jako kancelář nebo dílna. Garáž i carport mají přípravu pro dobíjení elektromobilů. Celková výměra parkovacích ploch činí přibližně 100 m² a pojme až 7 automobilů.
Zahrada je osázena vzrostlou zelení, která zajišťuje naprosté soukromí. Samozřejmostí je automatická závlaha napojená na tři retenční nádrže a dětská herní sestava.
Dům je technologicky na velmi vysoké úrovni. Nechybí pasivní chlazení (v podlaze i stropě), podlahové vytápění, rekuperace vzduchu s udržováním vlhkosti, úpravna vody Watex, hliníková okna s trojskly a předokenním stíněním, tepelné čerpadlo s geotermálním vrtem, příprava pro fotovoltaiku (FTV) a inteligentní domácnost LOXONE s možností individuálního nastavení. Samozřejmostí je kompletní zabezpečení celé nemovitosti.
Obec Předboj se dynamicky rozvíjí – vzniká nový veřejný park „Pod Vilami“ a nechybí zde mateřská škola, obecní úřad, obchod s potravinami i další služby. Do Prahy se dostanete autobusem za méně než 30 minut. Celkový komfort a výjimečnost lokality doplňuje Yard Resort s restaurací, wellness, sportovišti a prestižním golfovým hřištěm, které podtrhuje exkluzivitu této nabídky.
Tato moderní a energeticky úsporná stavba (energetická třída B) byla postavena z prvotřídních materiálů a nabízí velkorysou dispozici 6+kk. V přízemí je prostorná předsíň s vestavěnými skříněmi, koupelna s WC, technická místnost a pokoj. Dominantou domu je jižně orientovaný obytný prostor spojující obývací pokoj, jídelnu a kuchyň. Z obývací části je vstup na terasu s výhledem na 12m bazén se slanou vodou, obklopený bílou dlažbou, která prostoru dodává jedinečný charakter. Večery na terase zpříjemní osvětlená zahrada, moderní venkovní krb a špičkový audio systém Bowers & Wilkins.
V horním patře se nachází tři pokoje orientované na východ nebo západ (v současnosti využívané jako šatna s prádelnou, dětský pokoj a pracovna) a dále prostorná ložnice s orientací na V/JV, která disponuje vlastní koupelnou se sprchovým koutem, vanou, dvěma umyvadly a samostatným WC. Z této ložnice je přímý vstup na balkon. Na patře je navíc další koupelna s vanou, sprchou a WC a vstup na půdu vhodnou pro uložení sezónních věcí.
Interiér domu je promyšlen do posledního detailu jak po praktické, tak i designové stránce. Architekti zvolili kombinaci masivního dřeva, světlých stěn a kontrastních černých prvků, které vytvářejí elegantní a nadčasovou atmosféru.
Velkým benefitem oproti ostatním domům v projektu je samostatná zateplená garáž s výškou vjezdu 220 cm, plnohodnotnými IT a elektro rozvody – ideální i jako kancelář nebo dílna. Garáž i carport mají přípravu pro dobíjení elektromobilů. Celková výměra parkovacích ploch činí přibližně 100 m² a pojme až 7 automobilů.
Zahrada je osázena vzrostlou zelení, která zajišťuje naprosté soukromí. Samozřejmostí je automatická závlaha napojená na tři retenční nádrže a dětská herní sestava.
Dům je technologicky na velmi vysoké úrovni. Nechybí pasivní chlazení (v podlaze i stropě), podlahové vytápění, rekuperace vzduchu s udržováním vlhkosti, úpravna vody Watex, hliníková okna s trojskly a předokenním stíněním, tepelné čerpadlo s geotermálním vrtem, příprava pro fotovoltaiku (FTV) a inteligentní domácnost LOXONE s možností individuálního nastavení. Samozřejmostí je kompletní zabezpečení celé nemovitosti.
Obec Předboj se dynamicky rozvíjí – vzniká nový veřejný park „Pod Vilami“ a nechybí zde mateřská škola, obecní úřad, obchod s potravinami i další služby. Do Prahy se dostanete autobusem za méně než 30 minut. Celkový komfort a výjimečnost lokality doplňuje Yard Resort s restaurací, wellness, sportovišti a prestižním golfovým hřištěm, které podtrhuje exkluzivitu této nabídky.
Lokalita
Předboj - K Parku